展廳,不是一個將家居混裝在一起的大箱子,而是能讓消費者從中發現理想生活的空間,找到向往生活的模樣。
此次合作商展廳案例分享,為大家帶來的是華洲湖北當陽戰略合作商的展廳設計。

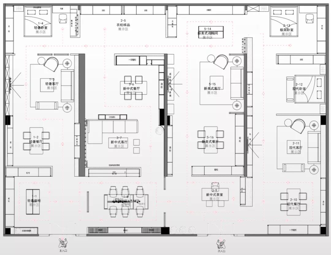
此次展廳面積為348㎡,設計師想探討一種集風格、美學、體驗三位一體的平衡表達方式,讓消費者進入展廳后,找到一種似知己般心照不宣的默契,身心能在此安放。為此,家居風格上選用了輕奢、現代、新中式、新美式多種風格,分別演繹精致、時尚、簡約、舒適等不同的生活狀態。飾面花色上以伯格灰橡、維拉煙熏橡木、云灰、托斯卡納金等代表性花色豐富而融洽地融入到家居產品設計中,多種花色紋理帶了豐富的體驗感,讓人忍不住想進一步一探究竟。而線路設計上,設計師早已規劃好了回字型的動線走向,流暢、清晰且豐富才是現代展廳該有的模樣。如星系般唯美的星云淺成為了輕奢櫥柜的主角,將精致的生活藝術展現在每一處細節。設計師用其和維拉煙熏橡木搭配,平和而溫暖;和羅馬線石搭配,冷暖結合,層次分明。而為了更凸顯空間的精致感,設計師搭配使用了金屬元素、個性燈飾,營造溫馨精致的高品質生活氛圍。① 柜體:S8016-2-Z-WA 維拉煙熏橡木(淺)③ 跳色墻板:S7007-1-SM-EA 羅馬線石(深)設計師對客餐廳的設計還原了精致簡約的輕奢本質,裝飾并不繁雜,反而通過材料本身的變化,更凸顯空間的藝術氣質。一板到頂的墻板簡約而大氣,通過格柵、線條、金屬、玻璃的元素的搭配讓空間不再單調,整個空間的設計花色也圍繞伯格灰橡與煙灰展開,氣質內斂而高貴,搭配同色系軟裝,在柔和的燈光下更顯溫馨與美好。

① 格柵墻板/墻板/柜體:S8010-Z-WA 伯格灰橡② 柜體/格柵背板: S8010-Z-WA 伯格灰橡臥室空間設計總是離不開溫馨與安逸,前者是情感的寄托,后者是心靈的慰藉。設計師為打造這樣的臥室特意選用了斯圖加橡木作為空間的主花色,搭配納維亞爵士白,自然而雅致。
空間設計上,設計師保持著簡約的理念,采用格柵墻板的形式代替平直墻板,讓空間更具延展性的同時,在光影的搭配下更容易營造溫馨的氛圍,可以讓人們輕松卸下疲憊,舒適入眠。② 柜體/格柵墻板:S7006-1-Z-WE 斯圖加橡木(深)新中式風格是中式元素通過現代手法的更新演繹,既保留了古韻,又有現代的簡約與時尚。設計師突破的使用了金屬、玻璃與波爾多胡桃相搭配,一方面凸顯空間的自然與素雅,一方面又將時尚個性并入其中。
② 跳色背板 :S7010-SM-EA 托斯卡納金而流淌在空間之處的小細節,似乎也在訴說空間的藝術之美,內圓金邊門板、金屬酒架的金木搭配,方圓的桌椅的中式內涵,令人不得不驚嘆設計師的想象。② 跳色背板 :S7010-SM-EA 托斯卡納金茶室的展示則素雅了許多,波爾多胡桃與煙灰在墻板上平分秋色,但彼此搭配卻多了一絲趣味,柵格與平直的結合,也豐富了空間的層次。古人講究“方圓”,方桌圓凳更貼內涵,而龐貝紅的植入也更顯生機,友人相座,似飲茶煮雪,也觀山外映紅。
① 格柵墻板/門板:S8002-SM-WB 波爾多胡桃新美式風格脫去了過去的繁瑣與浮華,沒有過多造作的修飾與約束,反而不經意間成就了另外一種“休閑式的浪漫與自在”。對于客餐廳而言,設計師所呈現的是一種簡約明快的氛圍,丁香白的大面積應用讓空間明快而光鮮,搭配羅馬線石更增強了空間質感,讓人倍感輕松。② 門板:S7007-2-SM-EA 羅馬線石(淺)新美式風格偏愛石紋與木紋的結合,簡單而直接,看似隨意卻不乏浪漫,優雅的雕刻,紐扣把手都是純粹的美式浪漫,但相較于這些,舒適感與使用感才是他們所追求的真正核心,自由不羈,釋放而安逸。② 跳色背板 :S7010-SM-EA 托斯卡納金丁香白成為了這里的主導,凸顯了衣帽間的簡約大氣,氣勢上大開大合,卻在細節處用雕刻勾勒出精致的內涵。鏤空的菱形網不僅具有藝術美感,也增強了衣柜空間的實用性,方便拿取,功能更加人性化。
灰白棕是演繹現代風格的寵兒,層次分明凸顯個性,冷淡低調又極具時尚感?,F代風格客餐廳的設計,設計師選用了米蘭布紋、丁香白、維拉煙熏橡木作為主花色,無需多余的裝飾,一板到頂的形象就是最好的名帖,簡約大氣又時尚。
① 墻板/柜體:S8016-2-Z-WA 維拉煙熏橡木(淺)簡單的顏色搭配與軟裝陳列并不能凸顯現代風格的內涵,將目光聚焦在材料本身及空間功能性上才能真正讀懂現代風格,開放柜的陳列收納、客廳大沙發的休閑座談、簡約的吃飯環境,看似普通,但有時真正的純粹,才會讓人感受到無比的輕松。
① 墻板/柜體:S8016-2-Z-WA 維拉煙熏橡木(淺)碳鋼拉絲自帶深灰的色調,更沉穩的氣質給家居空間更有質感的過度,與米拉相結合,非常適合呈現現代空間的簡約時尚。而線條的勾勒避免了空間的單調感,讓空間多了份層次,豐富而滿足。② 墻板/柜體:S9009-SM-WDA 碳鋼拉絲在兒童房的設計上,設計師更顯突出孩子們的童心,為孩子們編制一個美好的童話世界。因此,原木色與白色就成為了必不可少的存在。
愛丁堡橡木擁有暖卡其的顏色,摻雜著灰色和珠光的線條,搭配丁香白純潔而美好,而豆沙粉的加入,更營造了別樣的浪漫,滿足了每個女孩子的少女心。房內的家具和軟裝也人性化的采用了圓角設計,為孩子打造一個美好健康的居住空間。① 柜體:S8018-2-Z-WE愛丁堡橡木(淺)