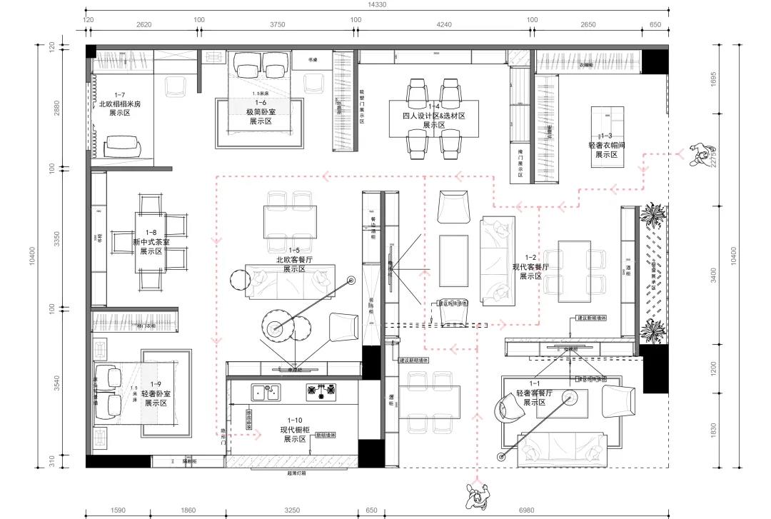
本次合作商展廳案例分享,為大家帶來的是華洲陜西西安戰略合作商150㎡的展廳設計。

設計
DESIGN
思路
此次展廳的設計面積為150㎡,合作商表示:想要展廳在擁有豐富設計風格的同時,又要有清晰的規劃和布局,使消費者擁有舒適且滿足的觀賞體驗。
豐富并不意味著繁雜,相反它更需要對空間進行合理的劃分,又要有獨特性,又能和整體空間和諧統一。為突出整個展廳的豐富性,設計師打造了輕奢、現代、北歐、極簡、新中式風格五大風格展示空間,還原了客餐廳、臥室等不同類型的生活情景。
而為了串聯不同空間,設計師采用了回字形動線設計,既能使消費者對整體空間的布局十分清晰,又能豐富不同空間的參觀軌跡,增加了參觀的舒適度和體驗感。
在花色的選擇上,設計師更偏向于華洲的主推花色,有新推出的PET花色、也有多款個性潮流的花色搭配,為消費者帶來高顏值的參觀體驗。
空間
SHOW
展示
1
輕奢客餐廳展示區
深色的木紋花色始終是輕奢的寵兒,自然的紋理是歲月沉淀的刻印,流淌在細節中的美感與優雅,是精致生活最好的詮釋。
客餐廳采用深棕色調的斯圖加橡木作為主花色,細膩逼真的鋸齒細紋和自然的小結疤,自然且真實,與羅馬線石搭配,更突出紋理的精致感,細膩且優雅。
而到頂的多格餐邊柜,搭配玻璃柜門與金屬邊框,更彰顯奢貴氣質,可以作為儲酒柜和展示柜使用,無論是紅酒還是藝術擺件,都彰顯主人高雅的生活品味。

Design and color
① 柜體+抽面:S7006-1-Z-WE 斯圖加橡木(深)
② 墻板:S7007-2-SM-EA 羅馬線石(淺)
2
輕奢臥室展示區
臥室空間同樣使用了斯圖加橡木作為主要花色之一,而為了營造臥室空間更加沉穩的舒適感,與之搭配的變成了更加厚重的莫拉特石紋與羅馬線石相結合,一板到頂的墻板設計,簡約又富有層次,很是高級。

Design and color
① 墻板:S8014-1-TB2 莫拉特石紋
② 墻板:S7007-1-SM-EA 羅馬線石(深)
③ 柜體+門板:S7006-1-Z-WE 斯圖加橡木(深)
3
輕奢衣帽間展示區
衣帽間的設計依然采取了木紋與石紋的經典搭配,只不過更顯經典與大氣。維拉煙熏橡木細膩流暢的花紋紋理,形成了漸變有致的流暢效果,搭配時尚個性的納維亞爵士白,讓空間呈現了舒適的動態美感,更前衛、也更潮流。
衣柜的設計形式也較為豐富,既有一板到頂的掩門柜,又有掛衣收納的開放柜,可以滿足生活中對衣物收納的不同需求,而島臺設計更滿足了飾品等小物件的收納訴求,十分人性化。

Design and color
① 門板:S7009-SM-EA 納維亞爵士白
② 柜體:S8016-2-Z-WA 維拉煙熏橡木(淺)
③ 抽面:S9011-SM-EA 煙灰
4
現代客餐廳展示區
通透明亮的餐廳設計總能帶來舒適的用餐氛圍,簡約時尚的設計特點也是現代風格受人們喜愛的主要緣由。
冰山白是華洲的新品花色,表面是PET陶瓷般的高光質感,可以瞬間提亮空間效果,搭配愛丁堡橡木的灰白色澤和珠光線條,更顯時尚與立體,為空間營造靈動輕松的氛圍。
酒柜采用了開放格與掩門相結合的設計,滿足了儲物與陳列的需求,增加了空間留白的藝術美感;桌椅的選配也十分簡約,藍+黑的凳子更富有活力和趣味。

Design and color
① 柜體:S8018-1-Z-WE 愛丁堡橡木(深)
② 門板:V3001-PET-HG 冰山白
5
現代廚房展示區
廚房空間免不了充滿煙火氣,而利用率高、功能性強的生活場景總會給人雜亂的感覺。設計師則通過柜體設計與色彩搭配很好的呈現了一個時尚簡約的現代廚房。
L型的廚房設計既實現空間最大化的利用率,又可以利用轉折把廚房劃分為互相垂直的兩個長形地帶,兩處的功能不同,各司其職,在較短的路程里實現洗菜做飯兩不誤。
上下柜設計,可以滿足多種類型的收納需求,冰箱、烤箱等電器采用嵌入式設計,不占空間,而且更為規整;而采用冰山白作為主花色,更營造出干凈明亮的廚房氛圍,讓人下廚也倍感愉悅。

Design and color
① 隱形門:S7006-1-Z-WE 斯圖加橡木(深)
② 門板:V3001-PET-HG 冰山白
③ 柜體:S8018-1-Z-WE 愛丁堡橡木(深)
④ 跳色背板:S7009-SM-EA 納維亞爵士白
6
北歐客餐廳展示區
北歐風格講究簡約與自然,與樸素的自然和中性的簡約不同,他們更需要色彩的加持,內涵中多了一份活力與新鮮。
簡約的設計線條彰顯實用主義的質樸,花色碰撞間產生的藝術美感是生活品味的流露。煙雨綠是華洲的新品花色,表面紋理為PET極致超啞面,它具有令人驚艷的天鵝絨般質感,高雅而且耐用,應用在北歐風格中,搭配丁香白與愛丁堡橡木,清新簡約中流淌躍動的活力,讓人很是享受。

Design and color
① 門板:Z6020-F12 丁香白
② 跳色背板+墻板:V3006-PET-E 煙雨綠
③ 柜體+墻板:S8018-2-Z-WE 愛丁堡橡木(淺)
7
北歐榻榻米展示區
在追求簡約和自然的同時,北歐風格也注重人性化的設計,注重材料與功能本身,講究家居設計與人體最舒適的契合,盡顯現代人們追求的簡約舒適的生活。
榻榻米空間設計師選用了加拿大楓木、丁香白與帝國黃這組“黃金鐵三角”相搭配,營造了榻榻米空間需要的輕松舒適且不乏活力的感覺。榻榻米中安置了升降桌,平時可以小憩和休息,需要時又可以變成品茶的小方桌。
書桌與置物架的設計也都很簡約與實用,沒有繁雜的裝飾,這才是最真實愜意的生活態度。

Design and color
① 柜體:Z6010-F16 加拿大楓木
② 門板:Z6020-F12 丁香白
③ 跳色板:S9012-SM-EA 帝國黃
8
極簡臥室展示區
極簡風格并不局限于藝術或設計,它是一種思想、價值觀以及生活方式。追求生活的簡約之美只是外表的訴求,人們渴望內心的安寧,渴望緩解精神壓力,解除審美疲勞。
設計師采用刪繁就簡的方式表達“斷舍離”的內涵,追求生活的本質與精神世界的放松。色彩上設計師采用棕、灰色相搭配,顏色相近又有層次區分,追求平和、舒緩、內斂之感;而直線線條也成為唯一的裝飾,讓臥室就是成為享受睡眠的地方。

Design and color
① 墻板+抽面+柜體:S8006-Z-CA 米蘭布紋
② 墻板+門板:S7007-2-SM-EA 羅馬線石(淺)
9
新中式茶室展示區
新中式風格的茶室非常受當下消費者所青睞,植入現代審美,將愜意舒適的精神內涵更新潮的演繹。
穩重典雅的波爾多胡桃與淡雅隨性的莫拉特石紋相結合,淺色的紋理線條豐富且飽滿,不拘泥于特定的形式,彷佛一幅古樸的畫卷。香雪梅的植入,更富于空間古樸的意境,清新且自然。

Design and color
① 墻板+柜體:S8002-SM-WB 波爾多胡桃
② 門板:S8014-2-TB2 莫拉特石紋(淺)
③ 跳色板:V5001-SM-EA 香雪梅